13 Gleneagles Street Niverville, Manitoba R0A 0A1
$469,900
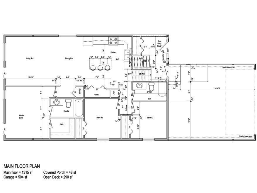
R07//Niverville/**Pictures are from similar build** National Home Warranty Included. Beautiful brand new 1,315 SqFt Bilevel with a full basement on a large 52' corner lot in Niverville Manitoba near the golf course (Highlands). Featuring 3 bedrooms, 2 bathrooms on the main floor. Great floorplan! Walk in to the large foyer area with vinyl flooring in the entrance with a large closet space! The main floor features laminate flooring, custom white cabinets, large island with quartz countertops. Living room has abundance of natural light with 9 foot ceilings and a patio door backing onto your yard (Deck is negotiable). The primary bedroom has an ensuite bathroom and large walk in closet! The basement is drywalled with an Insulated Concrete Form foundation (ICF) and steel beam construction! House is built on piles. Concrete driveway! Custom selections can still be made. Appliances & landscaping negotiable. Call now for more information and specs! (id:44822)
Property Details
| MLS® Number | 202508781 |
| Property Type | Single Family |
| Neigbourhood | The Highlands |
| Community Name | The Highlands |
| Features | Corner Site, No Smoking Home, No Pet Home, Sump Pump |
| Parking Space Total | 4 |
| Road Type | Paved Road |
Building
| Bathroom Total | 2 |
| Bedrooms Total | 3 |
| Architectural Style | Bi-level |
| Constructed Date | 2025 |
| Cooling Type | Central Air Conditioning |
| Flooring Type | Wall-to-wall Carpet, Laminate, Vinyl |
| Heating Fuel | Natural Gas |
| Heating Type | Forced Air |
| Size Interior | 1315 Sqft |
| Type | House |
| Utility Water | Municipal Water |
Parking
| Attached Garage |
Land
| Acreage | No |
| Sewer | Municipal Sewage System |
| Size Frontage | 52 Ft |
| Size Total Text | Unknown |
Rooms
| Level | Type | Length | Width | Dimensions |
|---|---|---|---|---|
| Main Level | Kitchen | 12 ft ,6 in | 13 ft ,6 in | 12 ft ,6 in x 13 ft ,6 in |
| Main Level | Dining Room | 13 ft ,6 in | 7 ft ,1 in | 13 ft ,6 in x 7 ft ,1 in |
| Main Level | Living Room | 13 ft ,6 in | 13 ft ,10 in | 13 ft ,6 in x 13 ft ,10 in |
| Main Level | Primary Bedroom | 14 ft ,3 in | 12 ft | 14 ft ,3 in x 12 ft |
| Main Level | Bedroom | 10 ft | 9 ft ,9 in | 10 ft x 9 ft ,9 in |
| Main Level | Bedroom | 9 ft ,10 in | 9 ft ,4 in | 9 ft ,10 in x 9 ft ,4 in |
https://www.realtor.ca/real-estate/28213619/13-gleneagles-street-niverville-the-highlands
Interested?
Contact us for more information
Christopher Hofer
(204) 257-6382
1549 St. Mary's Road
Winnipeg, Manitoba R2M 5G9
(204) 989-6900
(204) 257-6382
www.royallepage.ca/





















